Перед началом монтажа или технического обслуживания подстанции персонал должен внимательно ознакомиться с настоящей инструкцией.
Во всех случаях, не указанных в сопроводительной технической документации, эксплуатация аппаратов, приборов и электроматериалов производится по нормам, инструкциям, действующим в РФ.
Предприятие-изготовитель ООО "Энергомашсервис"непрерывно работает над усовершенствованием изделия и оставляет за собой право вносить изменения в конструкцию и электрические схемы, улучшающие технические и эксплуатационные параметры подстанции.

При эксплуатации и техническом обслуживании БКТП необходимо руководствоваться указаниями и требованиями:
- - Правила по охране труда при эксплуатации электро- установок.
- - Правила технической эксплуатации электроустановок потребителей.
- - Правила устройства электроустановок. - ГОСТ 12.2.007.0-75
- - "Изделия электротехнические. Общие требования электробезопасности".
- - ГОСТ 12.2.007.4-75 - "Шкафы комплектных распределительных устройств и комплектных трансформаторных подстанций.Требования безопасности".
- - ГОСТ12.1.030 -81 - "Электробезопасность. Защитное заземление, зануление".
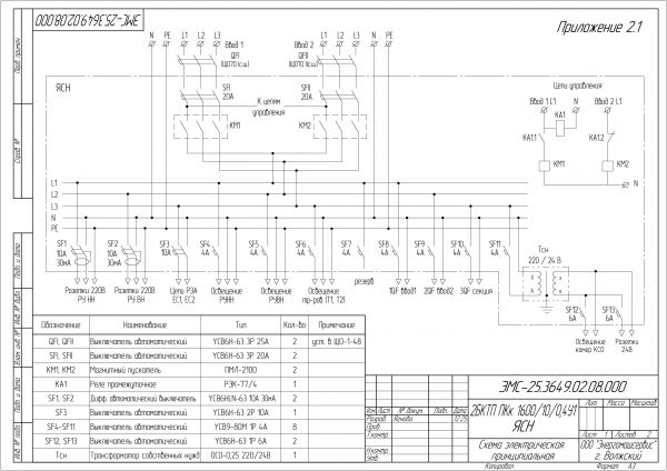
ОДНОЛИНЕЙНАЯ СХЕМА РУ-6кВА, РУНН-0,4кВА 1 и 2 секция.



БКТП соответствует требованиям ГОСТ14695-80 и ТУ27.11.4-002-39328633-2024.
- Климатическое исполнение и категория размещения У1 для эксплуатации на открытом воздухе в умеренном климате по ГОСТ 15150-69.
- БКТП предназначена для работы в следующих условиях: - интервал температур от минус 40°С до плюс 45°С; - по условиям работы комплектующей аппаратуры эксплуатация допускается на высоте не более 1000 м над уровнем моря; -
- окружающая среда не взрыво- и пожароопасная, не содержащая токоведущей пыли, химически активных газов и испарений в концентрациях, разрушающих металл, изоляцию и покрытие подстанции БКТП не предназначена для работы в условиях тряски и вибрации.
СХЕМА ЯСН 2БКТП 1600кВА
ГАБАРИТ 2БКТП-1600кВА
ПЛАН СОБСТВЕННЫХ НУЖД.
Ввод и вывод силовых кабелей осуществляется через объемный приямок, имеющий в стенках прямоугольные кессоны по всему периметру с толщиной стенки 50 мм, через которые после их «вскрытия» осуществляется прокладка асбестоцементных труб с последующей герметизацией ввода.
В полу БТП имеются отверстия для ввода кабелей, слива масла в маслосборник, а также люки со съемной металлической крышкой, обеспечивающий возможность доступа в объемный приямок.
В комплект поставки БКТП входят также металлические маслосборники, устанавливаемые в ОП в зоне трансформа- торных отсеков; металлические лестницы для спуска в ОП.
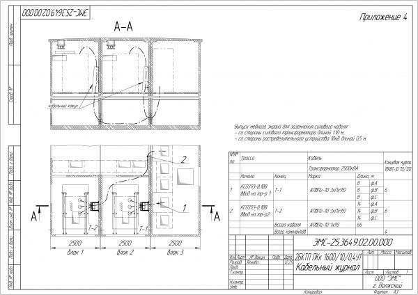
КАБЕЛЬНЫЙ ЖУРНАЛ 2БКТП-1600кВА.
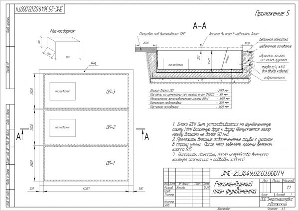
ПЛАН ФУНДАМЕНТА 3х6м
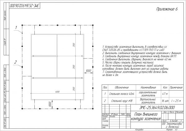
КОНТУР ЗАЗЕМЛЕНИЯ 2БКТП-1600кВА.
В БКТП выполнен внутренний контур заземления из стальной полосы 4х40 мм, предусмотрены выпуски стальной полосы для присоединения к наружному контуру заземления.Специальных мер по молниезащите подстанции не требуется, так как металлическая арматура каркаса БКТП имеет жесткую металлическую связь с внутренним контуром заземления, что соответствует РД 34.21.122-87 «Инструкция по устройству молниезащиты зданий и сооружений» Минэнерго РФ п.п.4.2.134 ПУЭ (7-е изд.)
Измерение сопротивления заземляющих устройств и проверка наличия цепи заземления с выборочным вскрытием грунта для оценки коррозийного состояния элементов заземления, находящихся в земле, должны производиться не реже 1 раза в три года.
Измерение сопротивления заземляющих устройств должны проводиться в периоды наименьшей проводимости поочередно: один раз летом при наибольшем просыхании почвы, другой раз зимой при наибольшем промерзании почвы.
Результаты измерений должны оформляться актами и заноситься в технический паспорт заземления подстанции. .
СТРОПОВКА 2БКТП-1600кВА.
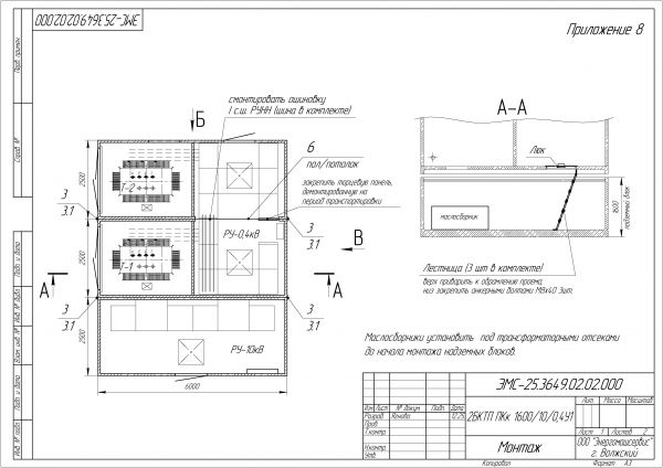
МОНТАЖ ДОБОРНЫХ ЭЛЕМЕНТОВ 2БКТП-1600кВА.
Отделка бетонных поверхностей БКТП производится путем нанесения штукатурной смеси, водно-дисперсионной краски с предварительным грунтованием. Полы покрываются краской исключающей образование цементной пыли. Кровля -водоизоляционный ковер выполнен из 2-х слоев рулонного гидроизоляционного материала. На внешние стены подземных блоков нанесено 2 слоя праймера битумного.
Установка или смена трансформатора производится через ворота блоков. Силовой трансформатор устанавливается на основание с направляющими, приваренными к полу отсека.Перемычки между КСО и силовыми трансформаторами выполняются одножильным кабелем с изоляцией из сшитого полиэтилена. Кабель прокладывается в ОП с последующим вводом соответственно в ячейки КСО и в трансформаторный отсек до контактов силового трансформатора.
Участок высоковольтного кабеля, проходящий по стене трансформа- торного отсека, защищен металлическим кожухом.Ошиновка от трансформатора со стороны 0,4 кВ до вводных панелей ГРЩ выполняется неизолированными шинами АД31Т сечением 100х10.
В БКТП в отсеках трансформаторов предусмотрена установка масляных силовых трансформаторов соответ- ствующей мощности.В РУ-10 кВ БКТП устанавливаются камеры КСО 393 с выключателями нагрузки, разъединителями, вакуумными выключателями, трансформаторами тока, ограничителями перенапряжений (согласно опросному листу).В РУ-0,4 кВ БКТП устанавливаются панели ЩО70 с выкатными автоматическими выключателями на вводах и на секции, с трансформаторами тока, счетчиками, приборами контроля тока и напряжения, с автоматическими выключателями на отходящих линиях (согласно опросному листу).

КТП имеет следующие виды защиты: - защита силовых трансформаторов выполнена микро- процессорным устройством АТАТ-100; - защита от атмосферных перенапряжений выполнена ограничителями перенапряжений; - защита от перегрузки, коротких замыканий отходящих линий выполнена автоматическими выключателями; - защита от перегрузок и токов короткого замыкания цепей собственных нужд подстанции выполнена автоматическими выключателями; - для защиты персонала в цепях розеток 220В применяются устройства защитного отключения с дифференциальным током 30мА.
БИТУМНЫЙ ПРАЙМЕР ДЛЯ КРЫШИ.
ПОЛУРУЛОНЫ СТЕКЛОИЗОЛА ДЛЯ НАПЛАВЛЕНИЯ НА СТЫКАХ БЛОКОВ.
ВВОДНАЯ ЯЧЕЙКА С ВНА.
ЛИНИЯ НА ТРАНСФОРМАТОР.
КАБЕЛЬНЫЕ ПЕРЕМЫЧКИ УВН с ТРАНСФОРМАТОРАМИ ТМГ 1600кВА
ПРОХОДНАЯ ОТХОДЯЩАЯ ЛИНИЯ.
Лицо, ответственное за техническое состояние и эксплуатацию БКТП, обязано обеспечить: - надежную, безопасную работу; - инструктирование и периодическую проверку знаний эксплуатационного персонала; -организацию и своевременное проведение регламентных работ; - наличие и свеовременную проверку защитных средств и противопожарного инвентаря; - своевременное предъявление установленным порядком рекламаций по качеству изготовления и монтажа БКТП.
ВНИМАНИЕ: Обслуживающий персонал должен помнить, что после исчезновения напряжения на подстанции напряжение может быть восстановлено без предупреждения, как при нормальной эксплуатации, так и в аварийных случаях. Поэтому при исчезновении напряжения запрещается производить какие-либо работы, касаться токоведущих частей, не обеспечив мер безопасности.Эксплуатация БКТП не требует постоянного присутствия обслуживающего персонала.